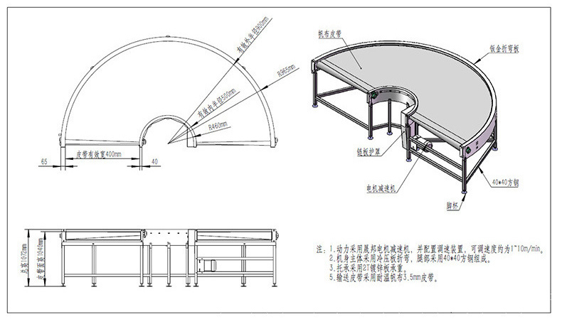
轉彎皮帶輸送機簡稱轉彎皮帶機可30°,45°,90°和180°輸送物料,轉彎皮帶輸送機輸送帶可根據輸送物料的性質選擇PVC、PU材質,除輸送普通物料外,還可選擇滿足耐油、耐腐蝕、防靜電等特殊物料輸送的皮帶材質.
全國統一銷售熱線0373-268 2333
免費獲取報價
轉彎皮帶輸送機簡稱轉彎皮帶機,是輸送流水線中使用比較廣泛的一種設備,用于輸送帶與輸送帶之間彎角的連續或間歇運動來輸送各種輕重不同的物料,常見的角度為30°,45°,90°和180°,能夠滿足各種轉彎輸送的工藝要求,轉彎皮帶輸送機輸送帶可根據輸送物料的性質選擇PVC、PU材質,除輸送普通物料外,還可選擇滿足耐油、耐腐蝕、防靜電等特殊物料輸送的皮帶材質,轉彎皮帶輸送機機架采用碳鋼或不銹鋼材質制作,驅動電機可根據用戶需求安裝在機架上面或者下面,有速度調節幽囚的用戶還可選擇變頻調速或無級變速減速電機。
主要分為強制性的變向轉彎和自然的變向轉彎,前者是不改變原來設備上的主要部件,只在轉彎的地方加入一個轉角來實現,一般用于大轉彎的狀態下,后者是讓輸送帶在自然狀態下彎曲運行,這種方式相較比較簡單,適合于小轉彎狀態下使用。
廣泛應用在食品、飲料、電子、煙草等行業,我們可以選用較小直徑的滾筒,使轉角連接更加方便,解決過渡問題。本設備適用于各種流水作業的生產廠家,中小型物品的物流輸送,動力系統采用變頻調速系統,性能穩定、安全可靠、操作簡單。線速度一般在30米/分鐘。
1、相較普通輸送機增加轉彎功能,可滿足各種輸送工藝要求。
2、可在30-180度角度下轉彎輸送。
3、可以輸送各種散料,也可輸送各類紙箱、包裝袋等單件重量不大的物料。
4、采用PVC、PU等材質,根據物料的不同可定制材質。
5、輸送平穩,物料與輸送帶間沒有相對運動,能夠避免對輸送物的損壞。
6、與其他輸送機相比噪音較小,適合于工作環境要求比較安靜的場合。
1、轉彎皮帶機結構形式有30度轉彎皮帶機、45度轉彎皮帶機、90度轉彎皮帶機、180度轉彎皮帶機, 能滿足各種轉彎輸送的工藝要求。
2、扇形皮帶加裝專用的防跑偏滾輪 (軸承外加聚甲醛POM)或者在輸送帶的外側高頻焊接導向筋使輸送帶運行在專用的導軌中。
3、滾筒輸送機之間易于銜接過濾,可用多條滾筒線及其它輸送設備或專機組成復雜的物流輸送系統以及分流合流系統,完成多方面的工藝需要。
轉彎皮帶輸送機是由驅動裝置提供驅動力,通過傳動滾筒牽引輸送帶,輸送帶即是承載體也是牽引體,轉彎裝置采用截盤式長輥轉向滾筒,確保輸送機在平面轉角運行中去除軸向力,達到膠帶換向目的。皮帶機轉彎裝置可實現0~180之間的任何轉換角度。
Copyright ? 2008-2019螺旋輸送機廠家-新鄉市大漢振動機械有限公司 All Rights Reserved 版權所有
網站備案號:豫ICP備09002479號-47